法拍台北內湖大樓

法拍屋,法拍屋代標,法拍屋出售
台北法拍屋
最後更新:2小時內
房子基本資料
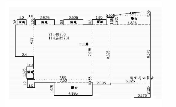
案名 【元大之星】SRC豪宅 平面車位 第五期重劃區 案號 114莊32731
地址 台北市內湖區南京東路六段259號13樓-2 社區/大樓元大之星(元大建設)
銷售狀態 待標中 售價
售5960萬
房子類型法拍大樓 總登記坪數 89.74 坪
格局 0房 屋齡 14年
每坪單價 66.41萬/坪 公設比
車位 坡道式平面車位 座向
無障礙環境 法拍屋 本物件是法拍屋
拍次 : 第二拍
開標日期 : 115/4/8(三) 14:30
建物所在樓層 13樓/共18樓 管理費
管委會 中庭
電梯 是否為凶宅 不是
300公尺內嫌惡設施 面前道路
面寬 縱深
邊間 房子銷售來源 不動產經紀人/專業仲介
房子特色

【物件資料】



🎈社區:元大之星



🎈門牌:台北市內湖區南京東路六段259號13樓-2



🎈樓層:13樓/共18層樓(鋼骨鋼筋混凝土造)



🎈主建坪:45.51坪



🎈附屬坪:7.72坪



🎈停車坪:11.69坪(含停車位編號99號)



🎈公設坪:24.82坪



🎈土地坪:13.40坪【住宅區■114年公告現值:380000元/㎡】合計:44.30㎡



🎈點交情形:點交(租約於本件查封後屆期,且屆期後不得另訂租約或默示更新租約)



🎈拍賣原因:《拍賣抵押物》



🎈投標地點:士林法院



🎈前手交易格局:3房2廳2衛



🎈實價登錄:同棟大樓成交均價(91.79萬/坪)不含車位價



🎈第二拍底價:5,960.0萬(66.4萬/坪)



🎈前手交易:101年12月6,959萬(85.8萬/坪)車位260萬





【生活機能】



✅明美公園,110公尺,步行6分鐘



✅潭美公園,350公尺,步行1分鐘



✅中油直營站新明路站,700公尺,車程4分鐘



✅迪卡儂臺北內湖店,1公里,步行14分鐘



✅好市多Costco內湖店,1.2公里,車程3分鐘



✅IKEA宜家家居內湖店,750公尺,步行11分鐘



✅潭美國民小學,83公尺,步行1分鐘



✅內湖科技園區,4.3公里,車程8分鐘





【交通機能】



🚘捷運松山站,1.3公里,車程6分鐘





【法拍之道,專業為鑰】



🟠標前審勢,明察房市漲跌,確立最佳競標策略。

🟠標中運籌,謀定後動,穩中求勝,助君得標。

🟠標後護航,產權過戶,點交無憂,一切妥帖。





【經紀業:一零四法拍網股份有限公司】



🏆經紀人:林桂英北市經證第1243號



🏆營業員:劉怡吟111年登字419331號



🏆贏法拍專線:0918-350-012(同Line電話)





贏法拍✅提供標購法拍房地全程服務✅只想為您贏得理想家園。



📞時不再來,機不可失!此等稀世之機,當速與贏法拍聯繫,共商競標大計





關於我們

我們成立於民國75年,至今共39年的歷史。



我們以法拍資訊起家,提供法拍投資者顧問諮詢的服務。從法拍資訊端開始,提供法拍屋相關課程,法拍屋合夥投資、法拍屋代標的一條龍務。



我們是國內成立最早、規模最大,擁有八成的市佔率。



我們資歷20年以上的員工佔7成以之,員工的流動率低,是提供客戶永續服務最有力的保證,我們不僅在法拍資訊深耕,首創法拍APP,更發展出結合預售與實價買賣行情的APP,全面掌握房地產的走向與趨式。



我們從提供諮詢開始,到協助客戶取得使用權為止,都是採全程陪同、包辦交屋的方式。沒得標,免付費。





代標三不守則

01不得經手保管客戶投標保證金及投標尾款

02不得巧立名目,賺取約定服務費以外費用

03不得賺取差價



代標服務

提供諮詢、篩選標的、過濾案件、實地勘查、銀行核貸(代墊尾款)、評估標價、法院投標、得標作業、取得所有權、辦理過戶、點交/不點交流程、取得使用權(交屋)

坪數說明
建物登記總坪數 89.74坪 土地登記總坪數 13.40 坪
主建物坪數 45.51坪 停車位坪數 11.69坪
附屬建物坪數 7.72坪 公共設施坪數 24.82坪
增建坪數 地下室坪數
周邊環境
生活機能 鄰近交通
鄰近地標 公園綠地
鄰近學區 捷運站
房子聯絡人資訊
聯絡人姓名 贏法拍
(煩請告知聯絡人,您是在House-Info房屋網看到這則廣告,真摯感恩您的幫忙)
手機
撥打電話0918-350-012
電子信箱
Skype通話 Line加入好友 Line加入好友
所屬公司名稱 財欣不動產管理顧問有限公司/104法拍網(股)/透明房訊雜誌社
公司電話 0918350012, 02-22600161 公司傳真 02-22740884
公司地址 新北市土城區金城路二段396號11樓
網 址 http://www.贏法拍.tw
贊助商廣告
台北大安區房屋,台北大安區房屋出售,台北大安區房屋資訊
新北法拍屋,新北市法拍屋,新北法院法拍屋,新北法拍屋查詢公告
台北內湖法拍大樓-1
台北內湖法拍大樓-1
台北內湖法拍大樓-2
台北內湖法拍大樓-2
台北內湖法拍大樓-3
台北內湖法拍大樓-3
台北內湖法拍大樓-4
台北內湖法拍大樓-4
台北內湖法拍大樓-5
台北內湖法拍大樓-5
台北內湖法拍大樓-6
台北內湖法拍大樓-6
台北內湖法拍大樓-7
台北內湖法拍大樓-7
台北內湖法拍大樓-8
台北內湖法拍大樓-8
台北內湖法拍大樓-9
台北內湖法拍大樓-9
台北內湖法拍大樓-10
台北內湖法拍大樓-10
台北內湖法拍大樓-11
台北內湖法拍大樓-11
台北內湖法拍大樓-12
台北內湖法拍大樓-12
台北內湖法拍大樓-13
台北內湖法拍大樓-13
台北內湖法拍大樓-14
台北內湖法拍大樓-14
觀看地圖

台北市內湖區南京東路六段259號13樓-2-大樓

物件留言
請注意,如果您詢問的內容與物件不相符合或是廣告,經過審核,系統將會直接刪除您的發問內容
*
檢舉物件不實
*
黃金曝光
相似物件
www.house-info.tw房屋網免責聲明:本系統為租用式開放房子買賣網站建置平台,僅提供會員查詢-法拍台北內湖大樓-等房子資訊參考,並不涉入任何諮詢、交易。 物件(服務)聯絡人公佈的資訊、文字、照片、圖形、產權、廣告內容、或其他資料若有不實或違法情事,或與客戶聯絡交易過程中若衍生民事或刑事等法律問題,皆與本房屋網站無關,所有商標、文章、名稱等版權,皆歸屬原著作者所有!
●電話:07-7963288