法拍中正區大樓
07-7963288
客服電話
申請房仲網站
首頁
找房子
找土地
找廠房
找法拍屋
找房仲
社區大樓
委託買賣
關鍵字
目前位置:
首頁
›
找法拍屋
›
台北市法拍大樓
›
中正區法拍大樓
›
法拍中正區大樓-台北市中正區臨沂街59巷10號2樓附車位,法拍屋代標 專線0913-303663 +LINE
最後更新:8小時內
檢舉案件不實
│
列印
│
物件留言
法拍中正區大樓
法拍中正區大樓
房子基本資料
案名
中正區臨沂街法拍屋,新生市場商圈瀧園大樓附車位
案號
一拍【114職一132金】
地址
台北市中正區臨沂街59巷10號2樓附車位,法拍屋代標 專線0913-303663 +LINE
社區/大樓
瀧園
銷售狀態
待標中
售價
售7660萬
房子類型
法拍大樓_大安森林公園
總登記坪數
67.69 坪
格局
4房, 2廳, 2衛, 2陽台, 1廚房
屋齡
24年
每坪單價
113.16萬/坪
公設比
車位
02號
座向
無障礙環境
法拍屋
本物件是法拍屋
拍次 : 一拍
開標日期 : 114/12/24(三)
建物所在樓層
2樓/共7樓
管理費
管委會
中庭
電梯
有
是否為凶宅
不是
300公尺內嫌惡設施
面前道路
面寬
縱深
邊間
房子銷售來源
不動產經紀人/專業仲介
房子特色
♛一零四法拍網(創立40週年)業界最大/專業團隊/全省服務/值得託付~
♠︎專業代標『吳先生』全程為您服務♠︎代標專線☎0913303663點入+line
💥💥💥刊登內容以公告機關為準請投標人注意🔥🔥🔥
法院筆錄:●點交情形→有點交●
1‧1372建號建物於114年2月6日現場查封時,該建物無門牌,並經現場與債權人之代理人確認,大樓2樓左側大門即為「臺北市中正區臨沂街59巷10號2樓」;具債權人陳報目前房屋為空屋,無人使用,故本件拍定後點交。
2‧拍賣標的經查相關主管機關後,並無發生非自然死亡情形,亦無發生過火災事件,亦非屬列管之海砂屋、輻射屋、地震受損屋,惟建物實際狀況須經專業人員辦理相關鑑定及偵測始能確認是否為海砂屋、有無輻射、有無地震受創,應由拍定人自行查明,請應買人注意。《台北地方法院案號:113年度司執宇字第146469號,給付票款》
[他項權利:拍後塗銷]
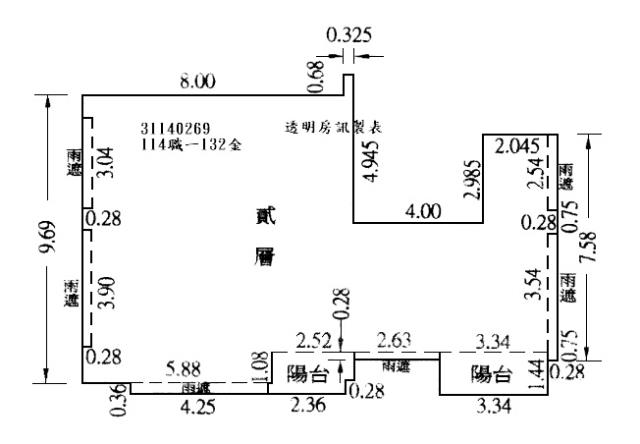
[謄本]:總坪數67.69坪[主建坪33.00坪,附屬坪4.31坪,停車坪6.80坪(建號:1377),公設坪23.58坪(建號:1377)][RC造/住家用]
⚖️拍賣機關公告
📣司法院法拍屋公告📣國有財產署標售不動產資訊📣台灣金服含未辦繼承法拍物件
📣法拍屋拍定價公告📣法務部行政執行署法拍物件📣產權清楚☆強制執行法【77條”81條】
🔎法拍一點不燒腦~~眉角全都在這邊~~懶人包裡報您知~~
📣📣104法拍網/透明房訊/法拍屋,土地全省最新拍賣資訊
📣台北法拍屋快搜📣新北法拍屋快搜📣桃園法拍屋快搜📣台中法拍屋快搜
♠北區熱門法拍屋♠北區法拍屋精選♠樂屋網
⏳法拍屋代標流程~~
1.銀行代墊尾款:(最高可貸八成)2.現場合理價格評估
3.得標協助辦理過戶4.點交全程不用陪同
5.和諧交付等您入住6.未得標不收取費用
☛法拍代標找專業~☛投標必中下決心~☛過了這村沒那店~☛別讓資金睡著了
❤誠摯讓您感受最優質的代標全程服務
自備2成輕鬆成家~特約銀行核撥快速~只有買方安心選購~彈性出價理財首選~
❦免費諮詢可+line❦望您來電問透透❦消除疑慮再委託❦收費契約最透明
❦❦❦❦❦❦❦❦❦❦❦❦❦❦❦❦❦❦❦❦❦❦❦❦❦❦❦❦❦
雙北助理專線☎02-22650614桃園助理專線☎03-3293994全省☎0913303663
🏘️經紀業:財欣不動產管理顧問有限公司統一編號:22857204
✍經紀人:(97)年北市經證字001562號
💼營業員:(98)登字第133601號
❦❦❦❦❦❦❦❦❦❦❦❦❦❦❦❦❦❦❦❦❦❦❦❦❦❦❦❦❦❦❦❦❦❦❦❦
生活e點通~
📣財政部新青安成家📣全國地政電子謄本系統📣地籍圖便民服務📣房地合一專區
📣台北捷運路線圖📣新北捷運路線圖📣桃園捷運路線圖📣台中捷運路線圖
坪數說明
建物登記總坪數
67.69
土地登記總坪數
16.33
主建物坪數
33.00
停車位坪數
附屬建物坪數
4.31
公共設施坪數
23.58
增建坪數
地下室坪數
周邊環境
生活機能
新生市場,東門市場,私立巨勝幼兒園,大安森林公園,長流美術館台北館,幸安國小,台北星辰飯店,捷運東門站,建國北路高架道路,
鄰近交通
國道1號圓山交流道,公車仁愛臨沂街口站,可搭乘37,222,270假日,270平日,630,651假日,651平日,仁愛幹線假日,仁愛幹線平日號公車
鄰近地標
公園綠地
鄰近學區
捷運站
房子聯絡人資訊
聯絡人姓名
吳先生
(煩請告知聯絡人,您是在House-Info房屋網看到這則廣告,真摯感恩您的幫忙)
手機
0913-303-663
電子信箱
Skype通話
Line加入好友
所屬公司名稱
財欣不動產管理顧問有限公司/專業代標/營業員(97)經證字號001562
公司電話
專業代標 吳先生 0913303663 02-22650614 03-3293994
公司傳真
02-22740884 03-3343929
公司地址
新北市土城區金城路二段396號11樓/桃園市莊敬路一段346號4樓/統編:22857204
網 址
http://www.熱門法拍屋.tw
贊助商廣告
台北大樓法拍-1
台北大樓法拍-2
台北大樓法拍-3
台北大樓法拍-4
台北大樓法拍-5
台北大樓法拍-6
台北大樓法拍-7
台北市中正區臨沂街59巷10號2樓附車位,法拍屋代標 專線0913-303663 +LINE-大樓
物件留言
請注意,如果您詢問的內容與物件不相符合或是廣告,經過審核,系統將會直接刪除您的發問內容
檢舉物件不實
黃金曝光
重慶南路三段129
大樓_套房_強恕高中商圈 / 1房
9.49坪
904萬
敦化南路二段106
大樓_法拍大樓
84.81坪
6605萬
安和路一段78巷2
大樓 / 4房
61.62坪
5558萬
中華路二段416巷
大樓_捷運龍山寺站 / 4房
55.28坪
2688萬
相似物件
成功路四段167巷
大樓 / 4房
93.12坪
7428萬
忠勇街40巷4弄1
大樓
120.43坪
7567萬
成功路四段167巷
大樓_法拍大樓
93.12坪
7428萬
南京東路六段259
大樓 / 3房
89.74坪
7449萬
www.house-info.tw房屋網
免責聲明:本系統為租用式開放房子買賣網站建置平台,僅提供會員查詢-
法拍中正區大樓
-等房子資訊參考,並不涉入任何諮詢、交易。 物件(服務)聯絡人公佈的資訊、文字、照片、圖形、產權、廣告內容、或其他資料若有不實或違法情事,或與客戶聯絡交易過程中若衍生民事或刑事等法律問題,皆與本房屋網站無關,所有商標、文章、名稱等版權,皆歸屬原著作者所有!
中正區法拍華廈
│
中正區法拍電梯大廈
│
中正區法拍電梯大樓
│
中正區法拍大樓
│
中正區法拍大廈
│
中正區法拍電梯華廈
│
中正區法拍透天別墅
│
中正區法拍透天厝
│
中正區法拍公寓
│
中正區法拍店面
│
中正區法拍套房
│
中正區法拍廠房
│
中正區法拍辦公室
│
中正區法拍豪宅
│
中正區法拍樓中樓
│
中正區法拍農舍
│
中正區法拍廠辦
│
中正區法拍雅房
│
中正區法拍倉庫
│
中正區法拍工業廠房
│
中正區法拍透天
│
中正區法拍中古屋
│
中正區法拍別墅
│
中正區法拍電梯別墅
│
中正區法拍透天店面
│
中正區法拍屋
│
中正區法拍房屋
│
中正區法拍房子
●電話:07-7963288
請注意:此案件已下架
資料處理中,請稍後...