售台南透天
07-7963288
客服電話
申請房仲網站
首頁
找房子
找土地
找廠房
找法拍屋
找房仲
社區大樓
委託買賣
關鍵字
目前位置:
首頁
›
找房子
›
台南市透天
›
東區透天
›
售台南透天-台南市東區崇善11街
最後更新:8小時內
檢舉案件不實
│
列印
│
物件留言
售台南透天
售台南透天
房子基本資料
案名
崇善商圈-孝親裝潢透天車庫,售1980萬
案號
4002
地址
台南市東區崇善11街
銷售狀態
帶看中
售價
售1980萬
房子類型
透天_別墅
總登記坪數
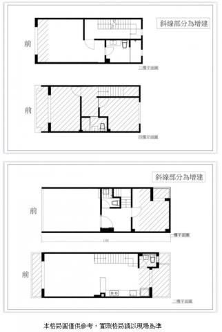
33.39 坪
格局
4房, 2廳, 4衛, 4陽台, 1廚房
屋齡
46年
每坪單價
59.3萬/坪
公設比
車位
室內車庫
座向
無障礙環境
沒有
法拍屋
不是
建物所在樓層
共4樓
管理費
管委會
沒有
中庭
沒有
電梯
沒有
是否為凶宅
不是
300公尺內嫌惡設施
面前道路
8米路
面寬
縱深
邊間
不是
房子銷售來源
不動產經紀人/專業仲介
房子特色
近崇善路-8米路
1.整棟重新整理+增建,實際使用
2.空間大幅提升,格局方正,動線佳
3.一樓孝親房+有天井+二樓延伸露台
4.屋內保有自然光,乾爽不潮溼
5.仁和商圈,生活機能完整,採買便利
6.崇善商圈近學區,外食方便,診所林立,生活便利滿分
坪數說明
建物登記總坪數
33.39
土地登記總坪數
17.84
主建物坪數
停車位坪數
附屬建物坪數
公共設施坪數
增建坪數
地下室坪數
周邊環境
生活機能
鄰近交通
鄰近地標
公園綠地
鄰近學區
德高國小,崇明國中
捷運站
房子聯絡人資訊
聯絡人姓名
陳盈秀
(煩請告知聯絡人,您是在House-Info房屋網看到這則廣告,真摯感恩您的幫忙)
手機
0928-010-990
電子信箱
Skype通話
Line加入好友
所屬公司名稱
誠昱不動產企業社(住商成大東興店)
公司電話
0928010990 (LINE)
公司傳真
公司地址
台南市永康區小北路30號
網 址
http://www.台南秀秀房仲網.tw
贊助商廣告
台南透天-1
台南透天-2
台南透天-3
台南透天-4
台南透天-5
台南透天-6
台南透天-7
台南透天-8
台南透天-9
台南透天-10
台南透天-11
台南透天-12
台南透天-13
台南透天-14
台南市東區崇善11街-透天
物件留言
請注意,如果您詢問的內容與物件不相符合或是廣告,經過審核,系統將會直接刪除您的發問內容
檢舉物件不實
黃金曝光
南台街
透天_套房_電梯學宿 / 26房
51.244坪
2880萬
東門路三段
透天_別墅 / 4房
55.98坪
1988萬
永春街
透天_別墅 / 6房
73.762坪
2580萬
東橋七路
透天_別墅 / 5房
56.752坪
2180萬
相似物件
南區鹽埕路
透天_店面 / 5房
45.96坪
1800萬
莊敬路
透天_別墅 / 3房
33.47坪
2280萬
崇善十一街55巷2
透天 / 4房
33.396坪
1980萬
忠孝路
透天_別墅 / 4房
35.25坪
1688萬
www.house-info.tw房屋網
免責聲明:本系統為租用式開放房子買賣網站建置平台,僅提供會員查詢-
售台南透天
-等房子資訊參考,並不涉入任何諮詢、交易。 物件(服務)聯絡人公佈的資訊、文字、照片、圖形、產權、廣告內容、或其他資料若有不實或違法情事,或與客戶聯絡交易過程中若衍生民事或刑事等法律問題,皆與本房屋網站無關,所有商標、文章、名稱等版權,皆歸屬原著作者所有!
台南市華廈
│
台南市電梯大廈
│
台南市電梯大樓
│
台南市大樓
│
台南市大廈
│
台南市電梯華廈
│
台南市透天別墅
│
台南市透天厝
│
台南市公寓
│
台南市店面
│
台南市套房
│
台南市預售屋
│
台南市豪宅
│
台南市樓中樓
│
台南市農舍
│
台南市雅房
│
台南市國宅
│
台南市辦公大樓
│
台南市透天
│
台南市中古屋
│
台南市新成屋
│
台南市新房屋
│
台南市新房子
│
台南市別墅
│
台南市電梯別墅
│
台南市別墅建案
│
台南市透天店面
│
台南市成屋
│
台南市套房建案
│
台南市屋主自售
│
台南市透天建案
│
台南市房屋
│
台南市房子
│
台南市新建案
│
台南市電梯透天
│
台南市建案
│
台南市大樓建案
│
台南市房地產
│
台南市不動產
●電話:07-7963288
請注意:此案件已下架
資料處理中,請稍後...