出售高雄三民區大樓
07-7963288
客服電話
申請房仲網站
首頁
找房子
找土地
找廠房
找法拍屋
找房仲
社區大樓
委託買賣
關鍵字
目前位置:
首頁
›
找房子
›
高雄市大樓
›
三民區大樓
›
出售高雄三民區大樓-高雄市三民區河堤路
最後更新:5小時內
檢舉案件不實
│
列印
│
物件留言
|
觀看地圖
出售高雄三民區大樓
出售高雄三民區大樓
房子基本資料
案名
河堤公園|樓中樓|三房平車
案號
地址
高雄市三民區河堤路
銷售狀態
帶看中
售價
售1430萬
房子類型
大樓
總登記坪數
48.667 坪
格局
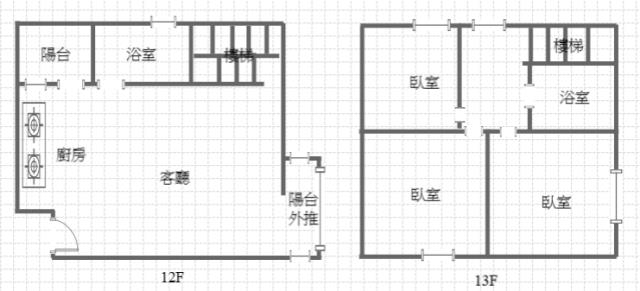
3房, 2廳, 2衛, 1陽台, 1廚房
屋齡
28年
每坪單價
29.38萬/坪
公設比
車位
坡道式平面車位
座向
無障礙環境
有
法拍屋
不是
建物所在樓層
12~13樓/共14樓
管理費
2326元/月
管委會
有
中庭
有
電梯
有
是否為凶宅
不是
300公尺內嫌惡設施
面前道路
15米
面寬
縱深
邊間
房子銷售來源
不動產經紀人/專業仲介
房子特色
★高雄小天母河堤社區,面河堤公園,享天然綠意與陽光
★近學區.公園.河堤圖書館,一應俱全超便利
★近漢神巨蛋.義享天地、明誠裕誠商圈,優質地段
★明星學區:河堤國小、龍華國中,近河堤圖書館
★次高樓,樓中樓格局,規劃三房兩衛採光極優
★屋主持有13年,屋況好,兩間浴室都有重作,一卡皮箱可入住
★客廳旁陽台外推,實際使用空間更大,配B1獨立車位
宏琳建設-石琳好來屋
總戶數280
土地-持分
第四種住宅區
12F-12.66坪/13F-15.45坪/陽台-2.87坪
坪數說明
建物登記總坪數
48.4
土地登記總坪數
5.42
主建物坪數
28.12
停車位坪數
6.98
附屬建物坪數
2.87
公共設施坪數
10.68
增建坪數
地下室坪數
周邊環境
生活機能
佳
鄰近交通
便捷
鄰近地標
河堤公園
公園綠地
河堤公園
鄰近學區
河堤國小
捷運站
巨蛋
房子聯絡人資訊
聯絡人姓名
鍾溫雅(阿雅)
(煩請告知聯絡人,您是在House-Info房屋網看到這則廣告,真摯感恩您的幫忙)
手機
0935-311-298
電子信箱
Skype通話
Line加入好友
所屬公司名稱
永義房屋 高雄美術擁樂加盟店
公司電話
07-3150808 或0935-311-298
公司傳真
公司地址
高雄市鼓山區美術東二路530號
網 址
http://www.168吉屋.tw
贊助商廣告
高雄三民區大樓-1
高雄三民區大樓-2
高雄三民區大樓-3
高雄三民區大樓-4
高雄三民區大樓-5
高雄三民區大樓-6
高雄三民區大樓-7
高雄三民區大樓-8
高雄三民區大樓-9
高雄三民區大樓-10
高雄三民區大樓-11
高雄三民區大樓-12
高雄三民區大樓-13
觀看地圖
到Google查看地圖
到Google查看街景
高雄市三民區河堤路-大樓
物件留言
請注意,如果您詢問的內容與物件不相符合或是廣告,經過審核,系統將會直接刪除您的發問內容
檢舉物件不實
黃金曝光
勵志二路
大樓 / 3房
52.556坪
1188萬
相似物件
松園六路
大樓 / 3房
45.94坪
1580萬
楠梓區
大樓
41.37坪
1450萬
至聖路
大樓 / 3房
41.35坪
1288萬
大學二十六街
大樓 / 4房
45.68坪
1298萬
www.house-info.tw房屋網
免責聲明:本系統為租用式開放房子買賣網站建置平台,僅提供會員查詢-
出售高雄三民區大樓
-等房子資訊參考,並不涉入任何諮詢、交易。 物件(服務)聯絡人公佈的資訊、文字、照片、圖形、產權、廣告內容、或其他資料若有不實或違法情事,或與客戶聯絡交易過程中若衍生民事或刑事等法律問題,皆與本房屋網站無關,所有商標、文章、名稱等版權,皆歸屬原著作者所有!
三民區華廈
│
三民區電梯大廈
│
三民區電梯大樓
│
三民區大樓
│
三民區大廈
│
三民區電梯華廈
│
三民區透天別墅
│
三民區透天厝
│
三民區公寓
│
三民區店面
│
三民區套房
│
三民區預售屋
│
三民區豪宅
│
三民區樓中樓
│
三民區農舍
│
三民區雅房
│
三民區國宅
│
三民區辦公大樓
│
三民區透天
│
三民區中古屋
│
三民區新成屋
│
三民區新房屋
│
三民區新房子
│
三民區別墅
│
三民區電梯別墅
│
三民區別墅建案
│
三民區透天店面
│
三民區成屋
│
三民區套房建案
│
三民區屋主自售
│
三民區透天建案
│
三民區房屋
│
三民區房子
│
三民區新建案
│
三民區電梯透天
│
三民區建案
│
三民區大樓建案
│
三民區房地產
│
三民區不動產
●電話:07-7963288
請注意:此案件已下架
資料處理中,請稍後...