內湖區華廈

法拍屋,法拍屋代標,法拍屋出售
台北法拍屋
最後更新:10小時內
房子基本資料
案名 金矽谷 No.26|內湖指標級企業總部地標 案號 No.26
地址 台北市內湖區新湖一路整棟
銷售狀態 帶看中 售價
售18億9000萬
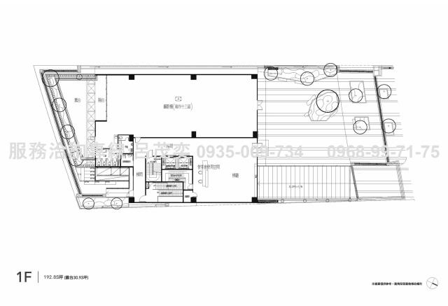
房子類型華廈_廠辦_商辦 總登記坪數 2086.92 坪
格局 開放格局 屋齡 預售屋
每坪單價 90.56萬/坪 公設比 待確認
車位 坡道平面 座向
無障礙環境 法拍屋 不是
建物所在樓層 1樓~8樓/8樓 管理費 未定
管委會 中庭 沒有
電梯 是否為凶宅 不是
300公尺內嫌惡設施 面前道路 20米
面寬 縱深
邊間 房子銷售來源 不動產經紀人/專業仲介
房子特色
🏢【金矽谷No.26|內湖指標級企業總部地標】

一、基地與區位優勢

🏡座落於內湖「工三特區」核心軸帶,鄰近環東大道、提頂大道與內湖科技園區主幹道,為北市第三種工業區(工三)廠辦用地。

近捷運港墘站/昆陽站/Y35與SB07捷運站預定地、內湖交流道、環東大道,串聯南港、信義計畫區與松山機場商圈,交通四通八達。

二、產品規格與建築亮點

🏡樓層規劃:地上8層,地下4層一層兩戶

🏡可售樓層:全棟預售中

🏡單層面積:約83~275坪,可彈性分層購買或整層整棟規劃

🏡使用分區:第三種工業區(可作研發、廠辦、商務辦公、倉儲物流)

🏡車位:62個可售車位/4個裝卸車位

🏡結構規劃:CNSSN等級耐震鋼材鋼骨制震結構,挑高大氣,承重設計優於一般辦公產品

🏡建築設計:外觀採玻璃帷幕立面搭配金屬飾板,兼具現代感與節能環保效能



三、功能定位與空間彈性

💼企業總部首選

🏡可整層設立企業總部,打造自有品牌大樓門面

🏡單層80坪起,符合大型部門或跨國企業分區辦公需求

🏡可結合研發、展示、會議、辦公一體化空間

🏭廠辦使用彈性大

🏡第三種工業區用途完整,可核准設立登記研發、倉儲、製造相關公司

🏡層高充裕,便於設置實驗室、輕量製程、伺服主機或物流配套

🏡空間可依企業需求隔間、整合貨梯與卸貨動線



四、景觀與生活機能

🏡緊鄰「成美左岸河濱公園」,部分樓層享有開闊水岸景觀

🏡周邊生活機能成熟:7-Eleven、星巴克、餐飲聚集、健身中心

🏡鄰近內湖Costco、家樂福、CityLink商圈,企業員工生活便利

五、投資與發展潛力

🏡內湖工三區可供買售的新屋稀少,自用與投資雙利基

🏡區內多家上市櫃企業總部進駐,形成聚落效應

🏡高車位比+整層彈性規劃=優質企業自購產品

🏡預期南港科學園區與北士科串聯效應,將持續帶動

內湖廠辦價值

💡「坐擁成美左岸,打造企業專屬地標。」

🏢「整層規劃・車位充足・結構安全・視野開闊」

🚀「工三核心・研發總部新指標・金矽谷NO.26」

👉🏽有需求的您~歡迎來電洽詢預約看屋!!謝謝您!

☎️洽詢預約專線:0935-009-734呂先生

🏡我們將竭誠為您服務,讓您實現居住夢想,開啟全新生活!🏡✨

經紀人證照字號:(91)北縣字第583號

僑茂房屋仲介股份有限公司

珍惜所託善德傳家

~僑茂不動產銷售租賃中物件網站~

https://www.cmhousing.com.tw/agent/0935009734

歡迎您加入FB~築夢安居交流社團~PO文分享討論免費刊登廣告創造多贏商機!!

https://www.facebook.com/groups/632016442596258

LINE>>>電話搜尋0935009734加好友~感謝您!!

坪數說明
建物登記總坪數 2086.92 土地登記總坪數 450.16
主建物坪數 1121.77 停車位坪數
附屬建物坪數 36.13 公共設施坪數 929.09
增建坪數 地下室坪數
周邊環境
生活機能 美聯社/成美左岸河濱公園/Costco、家樂福、CityLink 商圈 鄰近交通 捷運:Y35西松站(施工中) 公車:行善路潭美路口站
鄰近地標 舊宗路麥當勞 公園綠地 文心公園
鄰近學區 潭美國小,三民國中 捷運站 西松
房子聯絡人資訊
聯絡人姓名 呂茂奕
(煩請告知聯絡人,您是在House-Info房屋網看到這則廣告,真摯感恩您的幫忙)
手機
撥打電話0968-997-175
電子信箱
Skype通話 Line加入好友 Line加入好友
所屬公司名稱 呂茂奕房地產服務網
公司電話 0935009734 公司傳真
公司地址 台北市中正區新生南路一段60號六樓
網 址 http://www.marklu.idv.tw
贊助商廣告
台北大安區房屋,台北大安區房屋出售,台北大安區房屋資訊
新北法拍屋,新北市法拍屋,新北法院法拍屋,新北法拍屋查詢公告
內湖華廈-1
內湖華廈-1
內湖華廈-2
內湖華廈-2
內湖華廈-3
內湖華廈-3
內湖華廈-4
內湖華廈-4
內湖華廈-5
內湖華廈-5
內湖華廈-6
內湖華廈-6
內湖華廈-7
內湖華廈-7
內湖華廈-8
內湖華廈-8
內湖華廈-9
內湖華廈-9
內湖華廈-10
內湖華廈-10
內湖華廈-11
內湖華廈-11
內湖華廈-12
內湖華廈-12
內湖華廈-13
內湖華廈-13
內湖華廈-14
內湖華廈-14
內湖華廈-15
內湖華廈-15
觀看地圖

台北市內湖區新湖一路整棟-華廈

物件留言
請注意,如果您詢問的內容與物件不相符合或是廣告,經過審核,系統將會直接刪除您的發問內容
*
檢舉物件不實
*
黃金曝光
www.house-info.tw房屋網免責聲明:本系統為租用式開放房子買賣網站建置平台,僅提供會員查詢-內湖區華廈-等房子資訊參考,並不涉入任何諮詢、交易。 物件(服務)聯絡人公佈的資訊、文字、照片、圖形、產權、廣告內容、或其他資料若有不實或違法情事,或與客戶聯絡交易過程中若衍生民事或刑事等法律問題,皆與本房屋網站無關,所有商標、文章、名稱等版權,皆歸屬原著作者所有!
●電話:07-7963288